BTH-110.R18

Experience with over 8,000 machines with continual technical improvements, the "BTH-110.R18, H-Cube" has been developed to provide horizontal boring operational ability with machining center productivity and flexibility
Main features
Floor space saving
Efficient 6.1m by 6.1m (19.7ft by 19.7ft) "Square floor space"
Easy chip disposal
High-level side discharge hinge-type chip conveyor.
Protective covers
Operator protection from chip and coolant with easy access
Workability
Ease of operation with manual pendant box and environmental platform
Operation capability
Enhanced functions and options from TOSNUC 999
Why the H3!

High-Rigidity
Solid and rigid cast iron table, bed and column structures
High-Accuracy
Accuracy of feed mechanism with minimal backlash
High-Speed
18m/min rapid speed is now available on Box-way guide High power spindle motor with 4000min-1 spindle speed
table bed and column structures
Rotary table

The extreme thick table which withstands heavy loads

Expanded area of B axis slideway which takes heavy loads (1.4 times area of conventional machines), and increased thickness of the area.
Structure analysis

High speed precision machining is achieved through the use of a new B-axis drive mechanism (pat. pending).
B-axis positioning time : 15sec (0°~90°)
The revolutionary type of clamp is standard with a highly rigid double pinion-type drive system and rotary scale for stabilized precision table indexing.

Column

Spindle head

Minimal spindle overhang with stepped guideways on the column
Extra wide spanned guideways that withstand heavy-duty cutting forces, thus improving the overall performance.
Hardened and ground spindle
Main spindle completely nitrided, hardened and ground for maintaining highly accurate condition over the life of the machine.

A newly developed spindle for optimum high speeds, assurance of high accuracy and heavy duty machining.

The gear transmission and the winding switching control type spindle motor adapted for the main-spindle drive system realize the wide speed range, high rigidity and high torque performance. BTH-110.R18 complies with various machining needs for horizontal boring & milling machine, such as milling, boring, drilling, tapping, etc., wherefore highly accurate and efficient machining can be performed.
Minimal thermal displacement of spindle head

Use of an oil jacket and constant lubrication air mist volume for stabilized high accuracy cutting operations.
・Spindle bearings constant mist lubrication
Spindle normal direction control ((spring necked turning)) (option)

Composite machining of any shape such as cutoff and hale type finishing on an arc or along a straight line on any plane is possible with this C axis spindle control. Simple-type programs and tooling available for the machining of complex seal surfaces on the slots of such workpieces as vacuum devices.
Long nose type spindle head (option)

A long spindle head nose allows easy access to the workpiece, assuring stabilized accuracy even during heavy-duty machining operations.
(The spindle extension is 500 mm (19.7 in) same as standard.)
Note : Detailed of option specifications to be decided at a separate meeting.
Spindle detailed drawings

Through-spindle type coolant (option)

Spindle variations
Spindle-torque-output diagram

Examples of cutting capacity (Test-piece material: S55C[AISI 1055])
![Examples of cutting capacity (Test-piece material: S55C[AISI 1055])](/images/en/product/machinetool/lineup/b/BTH-110_R18_4-10.png)
TOSNUC999
TOSNUC999 (Triple nine) permits quick switching between manual, MDI and Automatic operation modes.

Customizing keys

1.Memorize a series of input operations beforehand in one of the special keys and press these keys to execute operations continuously.
2.Memorize a combination of NC standard displays such as main, sub and window displays in one of the special keys . By pressing these keys it displays the combination memorized.
Supporting both USB flash drive and compact flash (CF)
TOSNUC 999 is standard equipped with USB port and CF card slot in response to capacity enlargement of NC programs.
Full screen program editing function helps create an NC program easily.

-
Multi-window triple display
The display of TOSNUC 999 can be divided into three separate screens where simultaneous display of two different programs and offset data necessary for machining is possible. Also, data entry and editing can be done separately on each screen. -
Multi-editing function
A new program can be easily created by referring to and utilizing a previously made program on the multi-window display.
Visual program check function (option)
During programmed operation (i.e., background operation), an NC tape image of another program can be checked graphically. After program check, relevant tool path is drawn.
Triple teaching function for simultaneous machining and NC programming (option)
TOSNUC 999 stores in its memory all data created by the operator as NC programs. Programming is very easy by combining these programs, using various teaching functions.
-
Manual teaching function
All machining data such as tool path, spindle speed and feedrate as obtained in the manual mode are stored automatically as an NC program. -
MDI teaching function
When machining processes are executed one by one consecutively in the MDI mode, all such data are stored automatically as an NC program. -
Auto teaching function
In the AUTO or DNC mode, any data which has been modified can be fed back to the memory automatically.
Various functions shown above significantly improve operability
-
Manual alignment (centering) function
The touch sensor or master tool comes into contact with the measured surface of a workpiece according to the interactive screen, inner and outer diameters and angle of inclination of the specific workpiece that automatically calculates set-up.
MACHINE SPECIFICATIONS

Accessories (Machine)

CNC System Specifications TOSNUC 999
Standard Specifications

Special Specifications (Options)

Other Options

User media (option set B)

Very useful device for managing long programs.
Pendant operation box

Manual operations relating to machine movements are separated from the NC operation unit and centrally arranged on the pendant operation box. Thus, combined NC and manual machining operations can be performed smoothly.
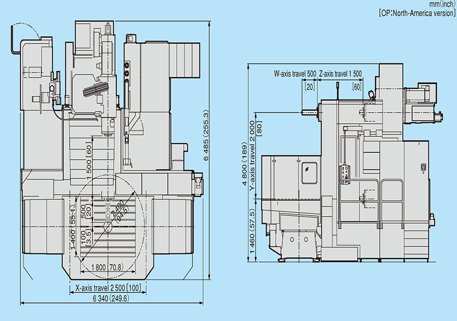
General View

The maximum work-piece range and travel for each axis

The maximum tool size
